Beschrijving

Hélène TERRA Makelaardij biedt te koop aan: Schuttershof 11 Berg en Terblijt

In een rustige straat, aan de rand van Berg en Terblijt, staat deze degelijk gebouwde twee-onder-een kapwoning met een garage, vier slaapkamers en een grote veranda. Met een tuin op het zuiden geniet je volop van de zon en op de oprit kunnen twee auto’s staan. In de woning zie je nog volop de sfeer van de jaren 70, wat je de mogelijkheid biedt om naar eigen smaak te gaan verbouwen en stylen. De basis is een goede, ruime woning met een prettige indeling en ruime slaapkamers. Perfect voor een gezin en om vanuit huis te werken!
De ligging aan de rand van het dorp heeft als voordeel dat het buitengebied en het bos binnen handbereik zijn. Zo kun je wandelen richting Het Geuldal, Sint Gerlach, Geulhem, Meerssen, Rothem en Amby. Berg en Terblijt is een dorp met diverse voorzieningen waaronder een supermarkt, enkele winkels, basisschool en sportverenigingen. Er is een goede busverbinding, onder andere met Maastricht en Valkenburg. De ligging ten opzichte van de snelwegen A2/A79 en het United World College maken het wonen op deze plek heel aantrekkelijk.

Indeling:
Begane grond:
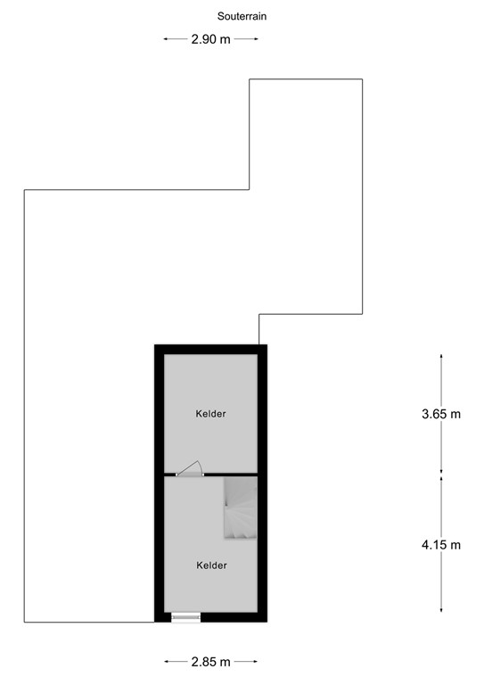
Aan de voorzijde is de entree van deze woning, die toegang geeft tot de hal. Hier zijn de trappen naar de eerste verdieping en de stahoge wijn-/provisiekelder, die uit twee ruimtes bestaat. De eerste ruimte, met de trap naar de begane grond, is voorzien van verwarming.
Terug in de hal zie je, naast de meterkast, een prima plek voor de kapstok. Er ligt travertin op de vloer en aan de rechterzijde is de toiletruimte met fonteintje die, net als een groot deel van de woning, nog uit de jaren 70.
Een deur met kleurrijk glas geeft toegang tot de woonkamer (circa 30.8 m2), die in open verbinding met de keuken (circa 10.7 m2) staat. Er ligt een mooie, eiken parketvloer en grote ramen aan de voor- en achterzijde zorgen voor veel lichtinval. Er zijn twee zitgedeeltes gecreëerd en er is genoeg plek om een grote eettafel neer te zetten. In de keuken staat een lichte hoekopstelling met een inductie kookplaat, afzuigkap, combimagnetron, koelkast met vriesvak en een vaatwasser.
Verrassend is de aangebouwde veranda van ruim 30 m2, met een lichte tegelvloer en verwarming. Dit is een fijne, lichte leefruimte met mooi uitzicht naar de tuin. Aan de rechterzijde, bij de garage, is de opstelling van de wasapparatuur en er is een deur naar de oprit. De garage (circa 18.5 m2) is voorzien van spouwmuren, een elektrisch bedienbare sectionaalpoort, elektra, verwarming en water. Voor de auto, motor, als hobbyruimte en berging is de garage een geschikte ruimte.

Eerste verdieping:
Vanaf de overloop zijn drie slaapkamers en de badkamer te bereiken. Het raam in de zijgevel zorgt voor veel lichtinval op de overloop en een groot deel van de ramen op deze verdieping is voorzien van een rolluik. De badkamer (circa 6.1 m2) is ingedeeld met een ligbad, aparte douche, wastafel, een tweede toilet en een bidet.
Met een oppervlakte van circa 14.4, 12 en 10.8 m2 heeft deze woning drie slaapkamers van goed formaat. Een van de slaapkamers geeft toegang tot het balkon aan de voorzijde en een andere slaapkamer is voorzien van een wastafel. Qua ruimte zijn alle kamers groot genoeg voor een bed, bureau en een garderobekast.

Tweede verdieping:
Een vaste trap geeft toegang tot de tweede verdieping. Hier is een overloop, met de opstelling van de HR-ketel. De overloop biedt toegang geeft tot de vierde slaapkamer (circa 11.7 m2), met een groot dakraam aan de achterzijde. Verder zijn er bergingen in de schuinten van het dak, voor koffers en andere spullen.

Tuin:
Deze ruime twee-onder-een-kapwoning heeft een goed onderhouden voor- en achtertuin, waarbij de achtertuin op het zuiden gesitueerd is. In de voortuin zie je lage beplanting in verschillende kleuren. Parkeren is geen probleem, want op de oprit kunnen twee auto’s staan.
Via de veranda loop je de achtertuin in, die ook vanuit de garage te bereiken is. De ligging op het zuiden zorgt voor veel zonuren en het terras is groot genoeg om een heerlijke loungeset en een tafel met stoelen neer te zetten. Het achterste deel van de tuin is aangelegd met bodembedekkers en mooie beplanting.

Bijzonderheden:
-	Verwarming en warm water via een cv-combi ketel (1999, eigendom);
-	Geheel vernieuwde riolering (2015/2016);
-	Dakisolatie (Isover, 1977) en spouwmuurisolatie (glaswol, 1977);
-	Houten kozijnen met enkel glas;
-	Veranda met aluminium kozijnen, voorzien van dubbel glas (jaren ’90);
-	Vier slaapkamers;
-	Ruime garage en een oprit voor twee auto’s;
-	Zonnige tuin (zuid);
-	Energielabel C

Kenmerken