| Prijs | € 520.000,- k.k. |
| Type object | Woonhuis, eengezinswoning, twee onder een kap woning |
| Perceeloppervlakte | 255 m² |
| Woonoppervlakte | 159 m² |
| Aanvaarding | In overleg |
| Status | Verkocht |
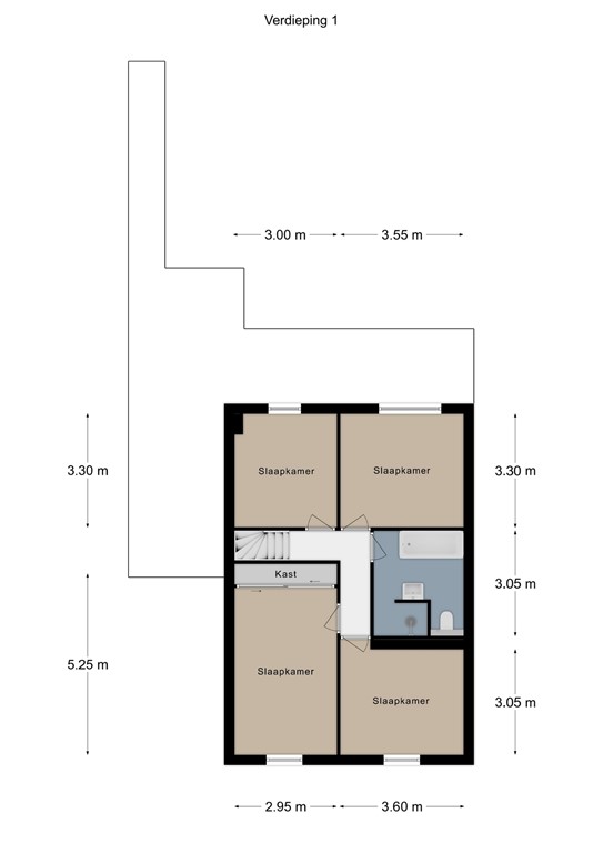
Hélène TERRA Makelaardij biedt aan: Beatrixstraat 7 Cadier en Keer Op slechts 3 kilometer van Maastricht, in het mooie Cadier en Keer, staat deze fraai verbouwde twee-onder-een kapwoning met een brede oprit en een zonnige, opnieuw aangelegde tuin op het westen. Op de bovenverdieping zijn maar liefst vier slaapkamers en de in 2025 vernieuwde, luxe badkamer. Verrassend is de indeling op de begane grond met een lichte woon-/eetkamer, een aparte tv-kamer, gezellige eetkeuken en een inpandig te bereiken berging. Er is niet alleen verbouwd maar ook verduurzaamd, van isolatie tot zonnepanelen en maar liefst vier airco-units. Locatie: Deze fraaie woning staat op de punt waar de Beatrixstraat en de Julianastraat elkaar kruisen. Het zijn beiden rustige straten, op loopafstand van het Raadhuisplein. Ken je dit plein nog niet? Hier vind je een supermarkt, bakker, enkele winkels en een huisartsenpraktijk met apotheek. Verder heeft Cadier en Keer een basisschool, kinderopvang, diverse sportverenigingen en een golfbaan. Met de fiets, bus en auto zijn Maastricht en Margraten goed bereikbaar. De bus brengt je overigens ook naar Gulpen, Vaals en Aken. Verbouwing: De huidige eigenaren hebben vanaf 2020 flink verbouwd. De buitengevels zijn geisoleerd, net als de kruipruimte, en er zijn 20 zonnepanelen geplaatst. Op de begane grond is er een geluidsarme tv-kamer gemaakt, en de meterkast is vernieuwd. In de keuken is een Quooker geïnstalleerd en je ziet nieuwe binnendeuren met deurbeslag. Ook op de eerste verdieping is veel vernieuwd. Er hangen vier airco-units, aangesloten op twee buitenunits, en er ligt een nieuwe cementdekvloer met een pvc visgraatvloer. Dit jaar is de badkamer vernieuwd en vergroot, met gebruik van design sanitair van onder andere Villeroy & Boch. In de master bedroom biedt een maatwerk kastenwand met schuifdeuren volop ruimte aan kleding, schoenen en andere spullen. Indeling: Begane grond: Aan de linkerzijde, bij de oprit, is de overdekte entree van deze verrassende woning. De kunststof voordeur geeft toegang tot de hal, met de trap naar de eerste verdieping. Ook de trap naar het souterrain bevindt zich in de hal, achter een van de mooie deuren. De toiletruimte is uitgevoerd met fraaie vloertegels, stucwerk, een wandcloset en een fonteintje. De woon-/eetkamer heeft een lengte van circa 9.50 meter, en is met 32 m2 een leefruimte van goed formaat. Er ligt, net als een groot deel van de begane grond, een mooie eikenhouten vloer. Het zitgedeelte is aan de voorzijde, het middelste deel is in gebruik als speelplek en aan de achterzijde is een tweede zitgedeelte. Verrassend is de separate en geluidsarme tv-kamer (circa 11.2 m2), te bereiken vanuit de hal. Deze kamer, aan de voorzijde van de woning, is ook geschikt als slaap-/logeerkamer, werkkamer of speelkamer van de kinderen. Vanuit de woonkamer is de gezellige leefkeuken (circa 15.1 m2) te bereiken, met mooi uitzicht naar de tuin. De keuken is, net als de woonkamer, heel licht en sfeervol. De luxe, moderne hoekopstelling (2018) heeft een mooie achterwand, twee wandplanken en alle benodigde apparatuur is ingebouwd: een 4-pits inductie kookplaat met afzuiging in het blad, een Quooker, vaatwasser, koelkast, vriezer, oven en een combimagnetron. Verrassend is de berging (circa 13.3 m2), die vanuit de keuken én vanaf de oprit te bereiken is. Je kunt er (stelling)kasten neerzetten, net als de (kinder)fietsen en andere spullen. In het achterste deel is ruimte voor de wasmachine, droger en een vriezer. Ook is er, heel verrassend, een douche in deze multifunctionele ruimte. Verbouw je deze ruimte tot slaapkamer, dan is het zelfs mogelijk om gelijkvloers te wonen. Eerste verdieping: Op de overloop ligt, net als in de slaapkamers, een fraaie visgraat pvc-vloer en in meerdere ruimtes is een airco-unit geplaatst, om te koelen en verwarmen. Blikvangers in de master bedroom zijn de circa 3 meter lange kastenwand met stijlvolle schuifdeuren en het patroonbehang op een van de muren. Verder zijn er twee leuke kinderkamers en een kamer, die als werk- en sportruimte wordt gebruikt. De laatste ruimte op deze verdieping is de vergrote, luxe badkamer (2025) met een ligbad, inloopdouche, een badmeubel met waskom en een wandcloset. Stucwerk is gecombineerd met fraaie wand- en vloertegels, mooie kranen en hoogwaardig sanitair. Dit is geen badkamer, maar een droombadkamer! Tuin: Vanuit de woon-/eetkamer, de keuken en de berging/wasruimte is de achtertuin te bereiken, met een uitstekende zonligging en genoeg ruimte om lekker buiten te zitten. Het gazon is een fijne speelplek voor de kinderen, en de gevarieerde beplanting zorgt voor een tuin met een gezellige sfeer. Zo zie je onder andere hortensia’s en een grote vlinderstruik met mooie bloemen. Links in de tuin zie je meerdere bergingen met dubbele deuren, voor het tuingereedschap en andere spullen. En als je na de bezichtiging naar de oprit loopt, dan zie je de voortuin met beplanting. Dit is een fijn huis voor een gezin, met lekker veel groen in de tuin en verrassend veel ruimte… Bijzonderheden: - Verwarming en warm water via een HR-ketel (2019; c.v.-ketel én expansievat vernieuwd); - Vernieuwde meterkast met 10 groepen, een krachtstroomgroep en meerdere aardlekschakelaars; - Kunststof kozijnen met dubbel glas en deels rolluiken (met uitzondering van de houten voordeur); - Vier slaapkamers; - Moderne badkamer (2025) op de eerste verdieping en een berging met doucheruimte op de begane grond; - Ruime woonkamer en een aparte, geluidsarme tv-kamer; - Lichte eetkeuken (2018) met alle benodigde inbouwapparatuur; - Parkeergelegenheid op eigen terrein; - Achtergevel verdient aandacht (mogelijkheid tot afwerking met isolatie en stucwerk); - Energielabel: A.
| Referentienummer | 264 |
| Vraagprijs | € 520.000,- k.k. |
| Status | Verkocht |
| Aanvaarding | In overleg |
| Aangeboden sinds | Maandag 22 september 2025 |
| Laatste wijziging | Vrijdag 31 oktober 2025 |
| Type object | Woonhuis, eengezinswoning, twee onder een kap woning |
| Soort bouw | Bestaande bouw |
| Bouwperiode | 1966 |
| Dakbedekking | Bitumen Kunststof |
| Type dak | Platdak |
| Isolatievormen | Dakisolatie Dubbel glas HR-glas Muurisolatie Spouwmuren Vloerisolatie |
| Perceeloppervlakte | 255 m² |
| Woonoppervlakte | 159 m² |
| Inhoud | 596 m³ |
| Oppervlakte overige inpandige ruimten | 22 m² |
| Oppervlakte externe bergruimte | 5 m² |
| Oppervlakte gebouwgebonden buitenruimte | 8 m² |
| Aantal bouwlagen | 2 (en 1 kelder) |
| Aantal kamers | 6 (waarvan 4 slaapkamers) |
| Aantal badkamers | 1 (en 1 apart toilet) |
| Ligging | Aan rustige weg Beschutte ligging In woonwijk |
| Type | Achtertuin |
| Hoofdtuin | Ja |
| Oriëntering | West |
| Staat | Goed onderhouden |
| Tuin 2 - Type | Voortuin |
| Tuin 2 - Oriëntering | Oosten |
| Tuin 2 - Staat | Goed onderhouden |
| Energielabel | A |
| CV ketel | Remeha HR |
| Warmtebron | Gas |
| Bouwjaar | 2019 |
| Combiketel | Ja |
| Eigendom | Eigendom |
| Aantal parkeerplaatsen | 2 |
| Warm water | CV-ketel |
| Verwarmingssysteem | Airconditioning Centrale verwarming |
| Badkamervoorzieningen | Inloopdouche Toilet Wastafel Wastafelmeubel |
| Heeft airco | Ja |
| Tuin aanwezig | Ja |
| Heeft zonnepanelen | Ja |
| Kadastrale aanduiding | Cadier en Keer A 2961 |
| Perceeloppervlakte | 255 m² |
| Omvang | Geheel perceel |
| Eigendomsituatie | Eigen grond |