Beschrijving

Hélène TERRA Makelaardij biedt aan: Van Plettenbergstraat 23 Margraten

Dit is je kans om te gaan wonen in het mooie Margraten! In de Van Plettenbergstraat staat deze fors uitgebouwde twee-onder-een kapwoning met verrassend veel leefruimte op de begane grond. De oprit en verlengde garage zijn twee grote pluspunten, net als de ruime tuin met twee terrassen. In totaal zijn er drie goede slaapkamers, waarvan een met een dakkapel, en de badkamer is heerlijk ruim. Naar eigen smaak kun je deze keurig onderhouden woning gaan moderniseren, verduurzamen en stylen totdat dit jouw droomhuis is.

Deze heerlijk lichte woning staat in het mooie Margraten, op loopafstand van alle benodigde voorzieningen. Zo kunnen de kinderen lopend naar school en woon je op korte afstand van de supermarkt, winkels, kinderopvang en diverse sportfaciliteiten. Margraten heeft goede busverbindingen richting Maastricht, Gulpen en Aken. Met de auto is het circa 15 minuten naar Maastricht en de oprit van de A2. Zo woon je in een gezellig, rustig dorp en heb je de dynamiek van de stad binnen handbereik.

Indeling:

Begane grond:
Vanaf de oprit loop je twee treden omhoog naar de mooie, overdekte entree van deze verrassend ruime woning. In de hal zie je de trapopgang, de meterkast en de toiletruimte met wandcloset. Ook de wijn-/provisiekelder met goede stahoogte is vanuit de hal te bereiken.
Dankzij de uitbouw zijn de woonkamer en keuken, van binnenuit gemeten, 2.70 meter langer geworden. Het resultaat is een ruime, lichte en speels in te delen leefruimte met een totale oppervlakte van ca. 53 m². In de woonkamer ligt parket en de uitbouw is, net als de keuken, voorzien van lichte plavuizen.
Vanaf het eetgedeelte is het maar een paar stappen naar de moderne keukenopstelling (ca. 2005) met een 5-pits gaskookplaat, afzuigkap, combi-oven/magnetron, oven, grote koelkast (Miele) en een vriezer (Miele).Schuin achter de woning staat een verlengde garage met diepte van ruim 10 meter en een oppervlakte van ca. 36 m². Voor de auto- en motorliefhebber, de klusser met werkbank, de (kinder)fietsen en andere spullen is dit de perfecte ruimte. In de garage staat een klein keukenblok, voorzien van koud water en warm water via een close-in boiler. Ook de opstelling van de wasapparatuur is in deze multifunctionele ruimte.

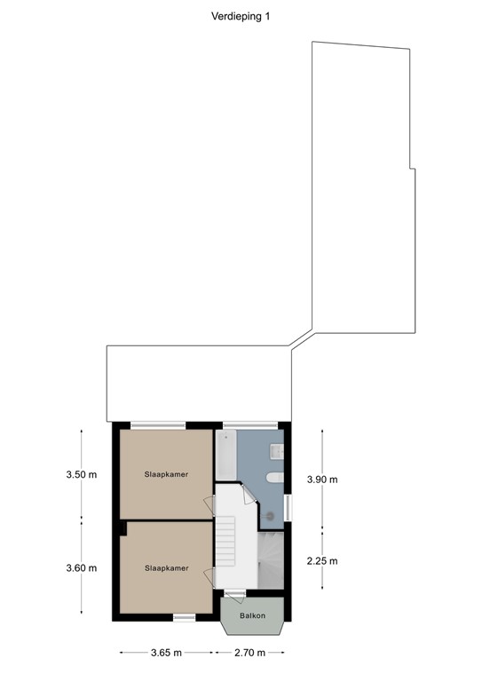
Eerste verdieping:
De lichte overloop grenst aan twee ruime slaapkamers, de badkamer en het balkon. Ook zie je hier de vaste, hardhouten trap naar de tweede verdieping. Beide slaapkamers zijn groot genoeg om in te delen met een tweepersoonsbed en een garderobekast. De vergrote badkamer is ingedeeld met een ligbad, aparte douche, tweede toilet en een wastafelmeubel.

Tweede verdieping:
Onder het schuine, van binnenuit geïsoleerde dak met dakkapel bevindt zich de derde slaapkamer met een dubbele berging in de schuinten van het dak. Op de overloop is niet alleen ruimte om spullen op te bergen, maar ook de opstelling van de HR-ketel en boiler.

Exterieur:
De onderhoudsvriendelijke voortuin grenst aan de diepe oprit, waar plek is voor minimaal twee auto’s. Tussen de woning en de garage is een eigen achterom met brede poort. Hierna kom je in de diepe achtertuin die, net als de woning, keurig is onderhouden. Er zijn twee terrassen, dus een plekje in de zon is zo gevonden. Verder zie je een lage haag aan de achterzijde, een handige tuinberging, gazon en borders met gevarieerde beplanting. De schutting aan de linkerzijde is samen met de buren geplaatst.

Bijzonderheden:
-	Uitbouw aan de achterzijde over de hele breedte van de woning;
-	Verlengde garage met diepe oprit;
-	Verwarming en warm water via een HR-ketel (Nefit Ecomline, 2004) i.c.m. een Nefit boiler;
-	Vloerverwarming in uitbouw;
-	Het hoofddak van de woning is van binnenuit geïsoleerd met 4 cm Tempex;
-	Hardhouten kozijnen met dubbel glas (m.u.v. 1 slaapkamerraam) en diverse rolluiken;
-	Drie goede slaapkamers en een ruime badkamer;
-	Dakkapel op de tweede verdieping;
-	Goed onderhouden voor- en achtertuin met eigen achterom;
-	Energielabel volgt.

Kenmerken