Beschrijving

Hélène TERRA Makelaardij biedt aan: Oude Baan 13C Wahlwiller

Welkom in het mooie Wahlwiller, waar deze vrijstaande, met de garage geschakelde woningstaat. Als je vanaf de Rijksweg het dorp inrijdt, ga je voor de kerk linksaf en volg je de straat naar nummer 13c. Wat je aan de voorzijde niet ziet, is het uitzicht aan de achterzijde. Vanuit de tuin en de woning kijk je op de Bornberg, bekend vanwege de wijnbouw en de unieke kalkgraslandflora. In de afgelopen jaren zijn het dak van de zolder en van de garage geïsoleerd. In 2024 is er een ventilatieunit geplaatst, de vlizotrap dateert van 2023 en het stucwerk op de begane grond is van 2019.

Wahlwiller is een prachtige plek om te wonen, omringd door het geliefde heuvelland. Er zijn diverse basisscholen in omliggende dorpen, waaronder Gulpen en Mechelen. Middelbaar onderwijs is op fietsafstand in Gulpen, net als supermarkten en sportvoorzieningen. Via de N278 zijn Maastricht en Vaals/Aken goed bereikbaar, terwijl de N281 je via Baneheide naar de A76 en Parkstad brengt.

Indeling:
Begane grond:
Aan het einde van de lange oprit is de overdekte entree, met de voordeur en de garagepoort. Via de voordeur is de ruime hal te bereiken, met de in 2019 vernieuwde toiletruimte en de trap naar de eerste verdieping.
Vanuit de hal is er toegang tot de woonkamer, keuken, garage/berging, en de tuin. De woonkamer, met lichtinval vanaf drie kanten, heeft een oppervlakte van circa 31.4 m2. Het stucwerk is in 2019 vernieuwd en aan de achterzijde is een deur naar het terras. 
In de dichte keuken (circa 9.8 m2) staat houtlook hoekopstelling met een ronde spoelbak en een stone-look aanrechtblad. De keramische kookplaat, afzuigkap, combi-oven en vaatwasser zijn ingebouwd en er is genoeg plek om een grote koel-/vriescombinatie neer te zetten.
De inpandig te bereiken garage (circa 22.9 m2) is uitgevoerd met spouwmuren, een kantelpoort naar de oprit en een deur naar de tuin. Niet alleen elektra is aanwezig, maar ook water en afvoer. Het is mogelijk om de garage te splitsen, om bijvoorbeeld een bijkeuken of een thuiswerkplek te creëren.

Eerste verdieping:
Het raam in de zijgevel zorgt voor veel lichtinval op de overloop, waaraan drie slaapkamers en de badkamer grenzen. Er zijn twee slaapkamers aan de voorzijde en de derde slaapkamer is, net als de badkamer, aan de achterzijde. Met een oppervlakte van circa 16.8, 13.9 en 8.6 m2 biedt deze verdieping meer dan genoeg ruimte!
De lichtkleurige, eenvoudige badkamer is ingedeeld met een ligbad/douche, een toilet en een wastafel. Boven de wastafel hangt een spiegelkast en op de wand zie je een schakelaar van de in 2024 geplaatste ventilatieunit.

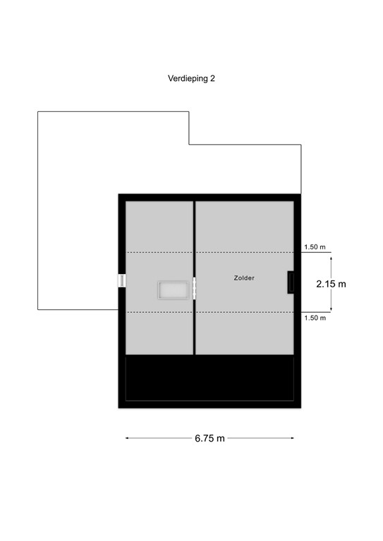
Zolder:
Verrassend is de ruimte op de nette bergzolder, te bereiken via een vlizotrap (circa 15 m2). Hier zijn twee ruimtes, waarvan een met de opstelling van de HR-ketel en ventilatie-unit.

Tuin:
Dit fijne huis heeft een ruime voortuin op het zuiden, met veel groen en beplanting die deels groenblijvend is. Op de oprit kunnen meerdere auto’s staan en aan de rechterzijde van de woning is de zijtuin, die als achterom te gebruiken is.
De achtertuin is een fijne plek voor de tuinliefhebber, met genoeg mogelijkheden om een moestuin of siertuin aan te leggen. Er staan meerdere, mooie bomen in de tuin en voor kinderen is er genoeg ruimte om buiten te spelen. 
En het uitzicht achter… in één woord prachtig!

Bijzonderheden:
-   Perceeloppervlak: ca. 500 m2; nader kadastraal in te meten;
-	Verwarming en warm water via een HR-ketel (Remeha, 2020, eigendom);
-	Mechanische ventilatie (Duco, 2024);
-	Het dak van de zolder is in 2023 van binnenuit geïsoleerd;
-	Het dak van de garage is in 2020 geïsoleerd;
-	Hardhouten kozijnen, deels met dubbel glas;
-	Stucwerk (2019) op de begane grond;
-	Drie slaapkamers;
-	Vlizotrap (2023) naar de zolder;
-	Energielabel C

Kenmerken