Beschrijving
Hélène TERRA Makelaardij biedt aan: Schoolstraat 13 Gulpen
In de luwte van het centrum, tegenover het Willem Alexanderplein, staat deze in 2005 gemoderniseerde vrijstaande woning met twee kelderruimtes, een ruime garage en twee multifunctionele bergingen. Boven zijn twee (mogelijk drie) slaapkamers en de keurige badkamer. De woonkamer met fraaie lichtinval staat in open verbinding met de keuken, beiden met mooi uitzicht naar de uitstekend onderhouden tuin. De spouwmuren en het dak zijn geïsoleerd en de kunststof kozijnen zijn voorzien van dubbel glas.
Dit is een heerlijke plek om te wonen, op nog geen 250 meter lopen van de Markt. Zo zijn de winkels, restaurants, cafés, supermarkten en de weekmarkt op loopafstand. Ook het busstation is in de nabijheid, net als de huisarts en apotheek. Ook voor basis-, speciaal- en middelbaar onderwijs hoeven de kinderen het dorp niet uit. De prachtige natuur rondom Gulpen nodigt uit voor een wandeling of fietstocht, door het dal of over de heuvels. Steden als Maastricht, Heerlen en Aken zijn met de auto en bus goed bereikbaar.
Indeling:
Begane grond:
Vanaf de oprit loop je richting de fraaie entree van deze vrijstaande woning. In de hal zie je de met marmer afgewerkte trap, de meterkast en een prachtige Jura natuursteen vloer. Naast de trap is de toiletruimte met dezelfde vloerafwerking, grote wandtegels en een wandcloset.
De lichte woon-/eetkamer staat in open verbinding met de keuken, die samen ca. 34 m² groot zijn. Dit zitgedeelte is aan de voorzijde, met uitzicht naar het Prins Willem Alexanderplein waardoor er altijd wat te zien is. Vanaf de eettafel, aan de zonnige zuidoostkant, kijk je naar de prachtige achtertuin.
In de tuin keuken staat een 3.50 meter lange wandopstelling met een granieten aanrechtblad en achterwand. Deze degelijke keuken is voorzien van grote lades, twee plintlades, kasten, een keramische kookplaat, koelkast en een oven. Aan de andere zijde, naast de fauteuil, is de trap naar het souterrain.
Vanuit de keuken is de ruime garage (ca. 20.6 m²) te bereiken. Deze ruimte is voorzien van een uitstortgootsteen en een elektrisch bedienbare sectionaaldeur. Er is een inpandige verbinding met twee aaneengesloten bergingen van totaal ca. 24.4 m², waarvan een in gebruik is als hobbyruimte. In alle ruimtes ligt een mooie tegelvloer en de ramen maken het mogelijk om het woongedeelte te vergroten. Denk hierbij aan het verplaatsen van de keuken of het realiseren van een werk-/studeerkamer.
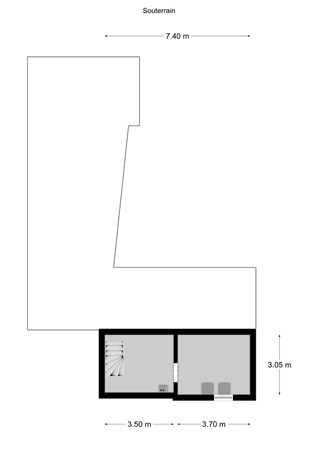
Souterrain:
Onder het voorste deel van het woonhuis is een stahoog souterrain met twee multifunctionele ruimtes. Op de betonvloer liggen lichte plavuizen en voorzieningen als elektra, water en afvoer zijn aanwezig. In de eerste ruimte staat een keukenblok en aan de andere zijde hangt de HR-ketel. De tweede ruimte is de plek van de wasmachine en droger, die op een verhoging staan.
Eerste verdieping:
Vanaf de overloop zijn twee (mogelijk drie) slaapkamers en de badkamer te bereiken. Aan de rechterzijde is de hoofdslaapkamer van ruim 23 m² en de tweede slaapkamer is ca. 9.4 m² groot. Deze kamer heeft een deur naar het platte dak boven de garage. In beide slaapkamers ligt een gelijmde eiken parketvloer, met een visgraatmotief in de hoofdslaapkamer.
De badkamer (ca. 4.5 m²), met maar liefst drie ramen in de voorgevel, is ingedeeld met een douche, wandcloset en een wastafel. Het marmermotief van de wandtegels past goed bij de donkere vloertegels.
Tuin:
Deze goed onderhouden, vrijstaande woning wordt aan drie kanten omringd door een fraai aangelegde, goed onderhouden tuin. In de voortuin zie je kleurrijke bloemen en op de oprit is parkeergelegenheid voor twee auto’s. De achtertuin, gesitueerd op het zuidoosten, biedt steeds nieuwe indrukken en verschillende plekken om in de zon te zitten.
Bijzonderheden:
- De woning is vanaf 2005 grotendeels gerenoveerd;
- Twee stahoge kelderruimtes, in gebruik als berging en wasruimte;
- Garage, twee bergingen en een oprit voor twee auto’s;
- Verwarming en warm water via een HR-ketel (Nefit Ecomline, 2005, eigendom);
- Moderne meterkast met 10 groepen en 2 aardlekschakelaars;
- Het dak van de woning en garage is geisoleerd (ca. 10 cm steenwol);
- De spouwmuren zijn in 2005 nageïsoleerd;
- Kunststof kozijnen met dubbel glas (1992);